Garage RCU control unit: instruction
Class: Computer Accessories
Type:
Manual for Garage RCU control unit

02
UNITA' dI coNTrollo rcU
rcU coNTrol UNIT
UNIdAd de coNTrol rcU
UNIdAde de coNTrole rcU
UNITé de commANde rcU
Jednostka steruJąca rcu
Блок ДУ
INSTAllAZIoNe
INSTAllATIoN
INSTAlAcIÓN
INSTAlAÇÃo
INSTAllATIoN
INSTAlAcjA
Установка

legeNdA SImbolI - SYmbolS legeNd - leYeNdA SímboloS - legeNdA doS SímboloS - légeNde
symboles - legenda symboli - Перечень символов
Pericolo generico / Generic danger / Peligro general / Perigo em geral / Danger générique /
=
Niebezpieczeństwo ogólne / Oпасность общего типа
Avvertenza / Warning / Advertencia / Advertência / Avertissement / Ostrzeżenie /
=
Предупреждение
Sommario / CoNTENTS / SUmÁrio / SommairE / SPiS TrEŚCi /
Оглавление
• Italiano ..................................................................................................................................5
• English .................................................................................................................................6
• Español ................................................................................................................................7
• Português .............................................................................................................................8
• Français ................................................................................................................................9
• Polski .................................................................................................................................. 10
• Русский ............................................................................................................................. 11
I
Questo manuale è parte integrante dell’apparecchiatura alla quale fa riferimento e deve accompagnarla
sempre anche in caso di vendita o cessione. Conservatelo per ogni futuri riferimento; ARAG si riserva il diritto
di modicare le speciche e le istruzioni del prodotto in qualsiasi momento e senza alcun preavviso.
GB
This manual is an integral part of the equipment to which it refers and must accompany the equipment
in case of sale or change of ownership. Keep it for future reference; ARAG reserves the right to modify the
specications and instructions regarding the product at any time and without prior notice.
E
Este manual es parte integrante del equipo al cual hace referencia y debe acompañarlo siempre, también
en caso de venta o cesión. Conservarlo para cualquier referencia futura; ARAG se reserva el derecho a
modicar las especicaciones y las instrucciones del producto en cualquier momento y sin aviso.
P
Este manual faz parte integrante da aparelhagem à qual se refere e deve acompanhá-la sempre, mesmo
nos casos de revenda ou cessão. Conserve-o para todas as consultas futuras; a ARAG reserva-se o direito
demodicar as especicações e instruções do produto em qualquer momento e sem nenhum aviso prévio.
F
Ce manuel est partie intégrante de l’appareil auquel il se réfère et doit toujours l’accompagner même en
cas de vente ou de cession. Le conserver pour toute référence future; ARAG se réserve le droit de modier
à tout moment et sans avis préalable, les spécications et les instructions concernant le produit.
PL
Poniższa instrukcja stanowi część integralną urządzenia, którego dotyczy i powinna mu zawsze
towarzyszyć nawet w przypadku jego sprzedaży lub cesji. Zachowajcie na wypadek konieczności jej konsultacji
w przyszłości; ARAG zastrzega sobie prawo dokonania zmian technicznych produktu w każdej chwili i bez
wcześniejszego uprzedzenia.
RUS
Это руководство является составной частью описанного оборудования и должно всегда
сопровождать его, как в случае продажи, так и при передаче в другие руки. Храните руководство для
случая необходимости его консультации в будущем. Фирма "ARAG" сохраняет за собой право вносить
изменения в спецификации и инструкции изделия в любой момент и без всякого предварительного
уведомления.

CONTENUTO DELLA CONFEZIONE / PACKAGE CONTENT / CONTENIDO DEL
PAQUETE / CONTEÚDO DA EMBALAGEM / CONTENU DE L'EMBALLAGE /
ZaVarToŚĆ oPaKoWaNia / СОДеРЖиМОе УПаКОвКи
Unità di controllo completa di cablaggi / Control unit with wiring
harness / Unidad de control con cableados / Unidade de controle
com ações / Unité de commande dotée de câblages / Jedno-
stka sterująca wraz z okablowaniem / Блок ДУ в комплекте с
электропроводкой
Fi g. 1
POSIZIONAMENTO DELL'UNITA' DI CONTROLLO / POSITIONING ThE CON-
TROL UNIT / POSICIONAMIENTO DE LA UNIDAD DE CONTROL / POSICIO-
NAMENTO DA UNIDADE DE CONTROLE / MISE EN PLACE DE L’UNITé DE
COMMANDE / USTaWiENiE JEDNoSTKi STErUJĄCEJ / РаСПОлОЖение
блОКа ДУ
3
Bravo 300S / Bravo 400 / Bravo 400S
1
Seletron
hydraulic for Seletron
POWER &
HYDRAULIC
COM-LINE
VA LVES
Tensione di alimentazione
Temperatura di esercizio
/ Power supply / Tensión
/ Working Temperature /
de alimentación / Tensão
Temperatura de ejercicio
ITEM
de alimentação / Tension
/ Temperatura de exercício
d'alimentation / Napięcie
/ Température de service
zasilania / Hапряжение
/ Temperatura robocza /
питания
Рабочая температура
Bravo 300S
-40 °C ÷ +85 °C
Seletron
9 ÷ 16 Vdc
-40 °F ÷ +185 °F
Bravo 400
Tab. 1
Fi g. 2

FISSAGGIO DELL'UNITA' DI CONTROLLO / INSTALLING ThE CONTROL
UNiT / FiJaCióN DE la UNiDaD DE CoNTrol / Fixação Da UNiDaDE DE
CONTROLE / ASSEMBLAGE DE L’UNITé DE COMMANDE / ZamoCoWaNiE
JEDNoSTKi STErUJĄCEJ / КРеПление блОКа ДУ
4
A
A
A
A
Nessun altro tipo di posizionamento è
consentito / Any other positioning is not allowed /
No se permite ningún otro tipo de colocación /
Nenhum outro tipo de posicionamento é permitido
/ Aucun autre type de positionnement n’est
admis / Nie jest dozwolona żadna inna
możliwość ustawienia / Не разрешается
располагать блок ДУ другим способом
Fi g. 3
Fissate la RCU mediante 4 bulloni inseriti nelle relative asole (A, Fig. 3) / Fasten the RCU using 4 bolts
installed in the relevant slots (A, Fig. 3) / Fijar la RCU mediante 4 bulones introducidos en los relativos
oricios (A, Fig. 3) / Fixe a RCU através dos 4 parafusos inseridos nos relativos olhais (A, Fig. 3) / Fixez
l’unité RCU à l’aide de 4 boulons insérés dans les fentes correspondantes (A, Fig. 3) / Przymocować
RCU za pomocą 4 śrub włożonych w odpowiednie otwory (A, Fig. 3) / Закрепите блок ДУ посредством
четырех винтов, вставленных в соответствующие петли (A, Fig. 3)

5
I
PRECAUZIONI GENERALI PER UN CORRETTO POSIZIONAMENTO DEI
CABLAGGI
Fi g. 4
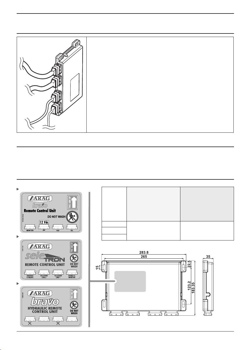
Alcuni connettori vengono forniti con slitta separata.
Inserite manualmente la slitta nella posizione che risulterà più agevole per l'inserimento
e l'estrazione del connettore.
• Aprite la slitta del connettore (1 in Fig. 4).
• Posizionate il connettore (2) inserendolo sulla presa (3) quindi premete: fate attenzione, durante
l’inserimento, a non piegare i contatti elettrici.
• Chiudete la slitta (4) no al completo serraggio.
Collegate i cablaggi come indicato in Fig. 2, Pag. 3; ognuno deve essere collegato
alla rispettiva presa sull'unità decentrata.
Se l'inserimento risulta difcoltoso, non forzate e vericate la posizione indicata.
• Fissaggio dei cavi:
- ssate i cablaggi in modo che non possano venire a contatto con organi in movimento;
- disponete i cablaggi in modo che la torsione o i movimenti della macchina non li rompano o ledano.
• Posizionamento dei cavi per evitare inltrazioni di acqua:
- le diramazioni dei cavi devono essere SEMPRE rivolte verso il basso (Fig. 5a).
Fig. 5a Fig. 5b
Utilizzate SOLAMENTE i cavi e gli accessori indicati a catalogo, con caratteristiche
tecniche adeguate al tipo di uso che deve essere fatto.

GB
GENERAL PRECAUTIONS FOR CABLE RUNS
Fi g. 4
Some connectors are supplied with separate slide.
Manually t the slide in the most convenient position allowing easy insertion and
removal of the connector.
• Open connector slide (1, Fig. 4).
• To position connector (2) insert it inside socket (3) then press: during this operation,
take care not to bend the electric contacts.
• Close slide (4) until it locks in place.
Connect the cables as shown in Fig. 2, Page 3; every cable must be connected to the
corresponding socket on remote control unit.
If they prove hard to insert, do not force them, but check the shown position.
• Securing the cables:
- fasten the harnesses in such a way that they cannot come into contact with moving parts;
- route the harnesses so that they can not be damaged or broken by machine movements or twisting.
• Routing the cables to protect against water inltrations:
- the cable branches must ALWAYS be face downwards (Fig. 5a).
Fig. 5a Fig. 5b
Use ONLY the cables and accessories indicated in the catalogue, having technical
features suitable for the use to be made of them.
6

7
E
PRECAUCIONES GENERALES PARA UN CORRECTO POSICIONAMIEN-
TO DE LOS CABLEADOS
Fi g. 4
Algunos conectores vienen suministrados con corredera separada.
Introducir manualmente la corredera en la posición que será más simple para la intro-
ducción y extracción del conector.
• Abrir la corredera del conector (1, Fig. 4).
• Posicionar el conector (2) introduciéndolo en la toma (3) luego presionar: prestar atención
a no doblar los contactos eléctricos durante la introducción.
• Cerrar completamente la corredera (4).
Conectar los cableados como se indica en la Fig. 2, Pág. 3; cada cableado debe ser
conectado a la respectiva toma en la unidad descentrada.
Si la introducción resulta difícil, no forzarlo y vericar la posición indicada.
• Fijación de los cables:
- jar los cableados de manera que no entren en contacto con órganos en movimiento;
- colocar los cables de manera que la torsión o los movimientos de la máquina no los rompan o
los dañen.
• Posicionamiento de los cables para evitar ltraciones de agua:
- las ramicaciones de los cables deben estar SIEMPRE dirigidas hacia abajo (Fig. 5a).
Fig. 5a Fig. 5b
Utilizar SOLAMENTE los cables y los accesorios indicados en el catálogo, con ca-
racterísticas técnicas adecuadas para el tipo de uso que debe realizar.

8
P
PrECaUçõES gEraiS Para Um CorrETo PoSiCioNamENTo DaS
FiaçõES
Fi g. 4
Alguns conectores são fornecidos com corrediça separada.
Insira manualmente a corrediça na posição que resultará mais fácil para a introdução
e a extração do conector.
• Precauções gerais para um correto posicionamento das ações (1, Fig. 4).
• Posicione o conector (2) introduzindo-o na tomada (3) em seguida pressione: preste atenção,
durante a introdução, para não dobrar os contatos elétricos.
• Feche o patim (4) até o seu completo aperto.
Conecte as ações como indicado na Fig. 2, Pág. 3; cada uma deve ser conectada
na respectiva tomada na unidade descentralizada.
Se a introdução for difícil, não force e verique a posição indicada.
• Fixação dos cabos:
- xe as ações de modo que não possam entrar em contato com órgãos em movimento;
- disponha as ações de modo que a torção ou os movimentos da máquina não as rompam ou
prejudiquem.
• Posicionamento dos cabos para evitar inltrações de água:
- as ramicações dos cabos devem estar SEMPRE direcionadas para baixo (Fig. 5a).
Fig. 5a Fig. 5b
Utilize SOMENTE os cabos e os acessórios indicados no catálogo, com característi-
cas técnicas adequadas ao tipo de uso que deve ser feito.

9
F
PRéCAUTIONS GéNéRALES POUR UNE MISE EN PLACE CORRECTE
DES CâBLAGES
Fi g. 4
Certains connecteurs sont fournis avec une glissière séparée.
Insérez manuellement la glissière dans la position qui sera plus pratique pour l'intro-
duction et l’extraction du connecteur.
• Ouvrez la glissière du connecteur (1, Fig. 4).
• Ouvrez la glissière du connecteur (2) et insérez-le dans la prise (3) puis appuyez : faites attention,
lors de l’insertion, à ne pas plier les contacts électriques.
• Fermez la glissière (4) jusqu’à son blocage.
Connectez les câblages comme indiqué dans la Fig. 2, page 3 ; chacun doit être
raccordé à la prise correspondante sur l’unité déportée.
Si l’insertion est difcile, ne forcez pas et vériez la position indiquée.
• Fixation des câbles:
- xez les câblages de sorte qu'ils ne puissent pas entrer en contact avec des organes en mouvement;
- posez les câblages de sorte que la torsion ou les mouvements de la machine ne puissent les
déchirer ou les éroder.
• Mise en place des câbles pour empêcher toutes inltrations d’eau:
- les brins des câbles doivent être TOUJOURS orientés vers le bas (Fig. 5a).
Fig. 5a Fig. 5b
Utilisez UNIQUEMENT les câbles et les accessoires illustrés dans le catalogue, avec
des spécications techniques appropriées à l’utilisation.

PL
ogólNE ŚroDKi oSTrożNoŚCi W CElU PraWiDłoWEgo
UłożENia Kabli
Rys . 4
Niektóre łączniki są dostarczane z oddzielnym ślizgaczem.
Włożyć ręcznie ślizgacz w pozycji najwygodniejszej do wkładania i wyjmowania łącznika.
• Otworzyć suwak łącznika (1, Rys. 4).
• Ustawić łącznik (2) wkładając go do gniazdka (3) następnie nacisnąć: uważać podczas wkładania,
aby nie zagiąć styków elektrycznych.
• Zamknąć suwak (4) do całkowitego dokręcenia.
Podłączyć kabel w sposób wskazany na Rys. 2, Str. 3; każdy z nich musi być
podłączony do odpowiedniego gniazda na jednostce zdecentrowanej.
Jeżeli macie trudności z włożeniem, nie forsować, tylko sprawdzić wskazaną pozycję.
• Zamocowanie kabli:
- przymocować kable w taki sposób, aby nie miały styczności z organami w ruchu;
- ułożyć kable w taki sposób, aby skręcanie lub ruchy maszyny nie uszkodziły ich.
• Ułożenie kabli w celu uniknięcia inltracji wody:
- rozgałęzienia kabli muszą być ZAWSZE skierowane w kierunku do dołu (Rys. 5a).
Rys. 5a Rys. 5b
Używać WYŁĄCZNIE kabli i akcesoriów wskazanych w katalogu o charakterystyce
technicznej odpowiedniej do przeznaczonego użycia.
10

RUS
Общие МеРы ПРеДОСтОРОЖнОСти ПО ПРавильнОМУ
РаСПОлОЖению Кабелей
Рис. 4
Некоторые разъемы поставляются с отдельным суппортом. Вручную установите
суппорт в положение, в котором легче вставить и вынуть разъем.
• Откройте суппорт разъема (1, Рис. 4).
• Вставьте разъем (2) в гнездо (3) и надавите на него: будьте при этом осторожны, чтобы
не повредить электрические контакты.
• Полностью закройте суппорт (4).
Соедините кабели, как указано на Рис. 2 и Рис. 3; каждый из кабелей должен
быть вставлен в соответствующую розетку блока ДУ.
Если вставка разъемов окажется затруднительной, не прилагайте усилия, а
проверьте указанное положение.
• Закрепление кабелей:
- закрепите кабели так, чтобы они не соприкасались с движущимися узлами;
- электропроводка должна быть проложена так, чтобы скручивание кабелей или движения
трактора не оборвали и не повредили ее.
• Правильное расположение кабелей для предупреждения попадания на них
воды:
- ответвления кабелей должны быть ВСЕГДА обращены вниз (Рис. 5a).
Рис. 5a Рис. 5b
Используйте ИСКЛЮЧИТЕЛЬНО кабели и аксессуары из каталога, имеющие
соответствующие технические характеристики и подходящие к назначению.
11

I
SMALTIMENTO DI FINE vITA
Da smaltire in conformità alla legislazione vigente nel paese in cui si esegue tale operazione.
GB
DISPOSAL AT ThE END OF SERvICE
Dispose of the system in compliance with the established legislation in the country of use.
12
E
ElimiNaCióN al FiNal DE la ViDa úTil
El aparato debe ser eliminado en conformidad con la legislación vigente en el país donde se
efectúa dicha operación.
P
ElimiNação No Fim Da ViDa úTil
O aparelho deve ser eliminado em conformidade com a legislação em vigor no país onde se faz
esta operação.
F
éLIMINATION DE FIN DE vIE
Éliminer conformément aux lois en vigueur aux pays où cette opération s’effectue.
PL
USUWaNiE Po ZaKoŃCZENiU EKSPloaTaCJi
Należy usunąć zgodnie z prawodawstwem obowiązującym w kraju, w którym przeprowadza się
czynnność.
RUS
Утилизация
Утилизируйте в соответствии с требованиями действующего законодательства страны
проведения этой операции.

Note / Notes / Notas / Uwagi / Примечания
13

Note / Notes / Notas / Uwagi / Примечания
14

Note / Notes / Notas / Uwagi / Примечания
15

I
Utilizzate esclusivamente accessori o ricambi originali ARAG, al ne di mantenere nel tempo le condizioni
di sicurezza previste dal costruttore. Fate sempre riferimento al catalogo ricambi ARAG.
GB
Only use original ARAG accessories and spare parts, to maintain safety conditions foreseen by the constructor.
Always refer to the ARAG spare parts catalogue.
D20268-m00 03/2012
E
Utilizar exclusivamente accesorios y repuestos originales ARAG, para mantener inalteradas las condiciones de
seguridad previstas por el fabricante. Consultar siempre al catálogo de repuestos deARAG.
P
Utilize exclusivamente acessórios ou peças sobressalentes da ARAG, a m de manter ao longo do tempo as
condições de segurança previstas pelo fabricante. Consulte sempre o catálogo de peças sobressalentes da ARAG.
F
Utiliser exclusivement des accessoires ou des pièces détachées d’origine ARAG an de préserver le plus
longtemps possible les conditions de sécurité prévues par le fabricant. Se reporter au catalogue des pièces
détachées ARAG.
PL
Stosować wyłącznie oryginalne akcesoria lub części zamienne rmy ARAG, aby zachować w czasie warunki
bezpieczeństwa przewidziane przez producenta. Odnosić się zawsze do katalogu części zamiennych ARAG.
RUS
Используйте исключительным образом фирменные аксессуары и запчасти фирмы АRAG для
сохраненияво времени безопасных условий работы оборудования, предусмотренных изготовителем.
Всегда смотрите каталог запчастей ARAG.
42048 RUBIERA (Reggio Emilia) - ITALY
Via Palladio, 5/A
Tel. +39 0522 622011
Fax +39 0522 628944
www.aragnet.com
info@aragnet.com

